• Home
  • Products
  • Latest News
  • Contact Us
  • Official Website
Casement Window
Multipoint Casement Window Concealed Hinge Series
Multipoint Exposed Hinge Series
Multipoint PMB
Multipoint Economy Series 1
Multipoint Economy Series 2
Casement Window
Casement Window (Small)
French Window
Multipoint Casement Window & Casement Window Accessories
Sliding Window
Performance Sliding Window
Economy Sliding Window Accessories
Economy Sliding Window(0.90mm)
Economy Sliding Window(1.10mm)
Sliding Door
High Classic Sliding Door
Performance Sliding Door
Sliding Comdoor
Standard Sliding Door(1.05mm)
Economy Sliding Door(1.00mm)
High Classic/Performance/Comdoor/Sliding Door Accessories
Standard Sliding Door(1.20mm)
Folding Door
Folding Door (Exposed Hinge Series)
Folding Door (Concealed Hinge Series)
View All
Shopfront
Shopfront 1 6/8" x 3"
Shopfront 1 6/8" x 4"
Curtain Wall
Swing Door
Swing Door
Swing Door Accessories
Partition
Roller Shutter
Grille
Insect Screen
Insect Screen
Insect Screen Frame
Kitchen Cabinet & Wardrobe
Cabinet Door Frame
Body Cabinet
Drawer
Wardrobe (Anti Jump)
Kitchen Cabinet & Wardrobe Accessories
Showcase
Louvres
Miscellaneous
Miscellaneous
Curtain Series
Fencing & Gate Panel Series
Hanging Sliding Door System
Aluminium Angle(Equal)
Aluminium Angle(Unequal)
Aluminium Channel(Equal)
Aluminium Channel(Unequal)
Aluminium Hollow(Square)
Aluminium Hollow(Rectangular)
Aluminium Round Tube
Aluminium Flat Bar
Aluminium Open Back
Gasket/Weather Strips
Hardware&Tools
Silicone
View All
PVC Brackets
Glass Accessories
Glass Accessories
Shower Accessories
Floor Spring Accessories
Pull Handle
Glass Fencing Accessories
View All
Machinery
Aluminium Composite Panel
3mm Aluminium Composite Panel
4mm Aluminium Composite Panel
AWNING&ROOFING
Colour Choice for Aluminium
Anodised
Powder Coat Color
Wood Grain Color
Conveyor Profiles
Slim Edge Series

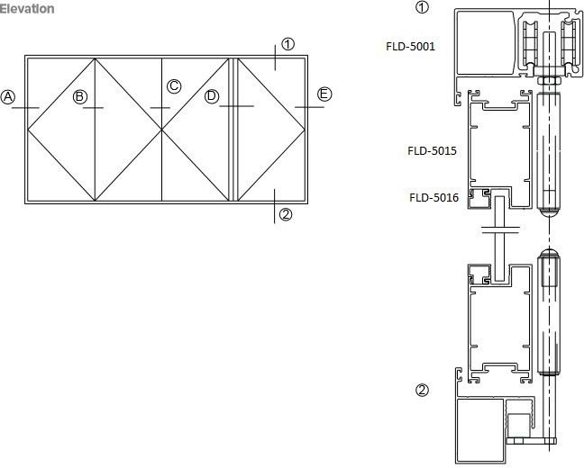
Folding Door (Exposed Hinge Series) Malaysia, Selangor, Kuala Lumpur (KL)

  1. Home
  2. Products
  3. Folding Door
  4. Folding Door (Exposed Hinge Series)

1/3
FLD-5011
FLD-5011
A412
A412
FLD-5030
FLD-5030
FLD-5029
FLD-5029
FLD-5028
FLD-5028
FLD-5027
FLD-5027
A71
A71
A72
A72
A73-Handle Only
A73-Handle Only
A73
A73
A74-MP
A74-MP
A328
A328
A348
A348
A347
A347
A346
A346
A56
A56
A57
A57
A58
A58
A58-Brass
A58-Brass
A60-Brass
A60-Brass
A59
A59
A62
A62
A61
A61
A63
A63
  • 1
  • 2
  • 3
© 2020 - 2026 GHL ALUMINIUM MARKETING SDN BHD 201701035129(1249300-H) Powered by ONESYNC.MY
Official Website

Visitor: 1504005