• Home
  • Products
  • Latest News
  • Contact Us
  • Official Website
Casement Window
Multipoint Casement Window Concealed Hinge Series
Multipoint Exposed Hinge Series
Multipoint PMB
Multipoint Economy Series 1
Multipoint Economy Series 2
Casement Window
Casement Window (Small)
French Window
Multipoint Casement Window & Casement Window Accessories
Sliding Window
Performance Sliding Window
Economy Sliding Window Accessories
Economy Sliding Window(0.90mm)
Economy Sliding Window(1.10mm)
Sliding Door
High Classic Sliding Door
Performance Sliding Door
Sliding Comdoor
Standard Sliding Door(1.05mm)
Economy Sliding Door(1.00mm)
High Classic/Performance/Comdoor/Sliding Door Accessories
Standard Sliding Door(1.20mm)
Folding Door
Folding Door (Exposed Hinge Series)
Folding Door (Concealed Hinge Series)
View All
Shopfront
Shopfront 1 6/8" x 3"
Shopfront 1 6/8" x 4"
Curtain Wall
Swing Door
Swing Door
Swing Door Accessories
Partition
Roller Shutter
Grille
Insect Screen
Insect Screen
Insect Screen Frame
Kitchen Cabinet & Wardrobe
Cabinet Door Frame
Body Cabinet
Drawer
Wardrobe (Anti Jump)
Kitchen Cabinet & Wardrobe Accessories
Showcase
Louvres
Miscellaneous
Miscellaneous
Curtain Series
Fencing & Gate Panel Series
Hanging Sliding Door System
Aluminium Angle(Equal)
Aluminium Angle(Unequal)
Aluminium Channel(Equal)
Aluminium Channel(Unequal)
Aluminium Hollow(Square)
Aluminium Hollow(Rectangular)
Aluminium Round Tube
Aluminium Flat Bar
Aluminium Open Back
Gasket/Weather Strips
Hardware&Tools
Silicone
View All
PVC Brackets
Glass Accessories
Glass Accessories
Shower Accessories
Floor Spring Accessories
Pull Handle
Glass Fencing Accessories
View All
Machinery
Aluminium Composite Panel
3mm Aluminium Composite Panel
4mm Aluminium Composite Panel
AWNING&ROOFING
Colour Choice for Aluminium
Anodised
Powder Coat Color
Wood Grain Color
Conveyor Profiles
Slim Edge Series

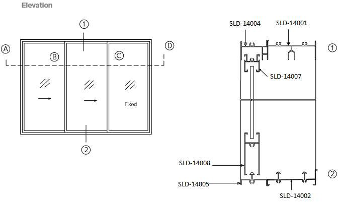
Economy Sliding Door(1.00mm) Malaysia, Selangor, Kuala Lumpur (KL)

  1. Home
  2. Products
  3. Sliding Door
  4. Economy Sliding Door(1.00mm)


1/1
SLD-14009
SLD-14009
SLD-14007
SLD-14007
SLD-14008
SLD-14008
SLD-14010
SLD-14010
SLD-14011
SLD-14011
SLD-14012
SLD-14012
SLD-14024
SLD-14024
SLD-14023
SLD-14023
SLD-14014
SLD-14014
SLD-14013
SLD-14013
SLD-14006
SLD-14006
SLD-14005
SLD-14005
SLD-14004
SLD-14004
SLD-14003
SLD-14003
SLD-14002
SLD-14002
SLD-14001
SLD-14001
© 2020 - 2026 GHL ALUMINIUM MARKETING SDN BHD 201701035129(1249300-H) Powered by ONESYNC.MY
Official Website

Visitor: 1507933